Projekt „Atlanta”
Projekt „Atlanta”
z
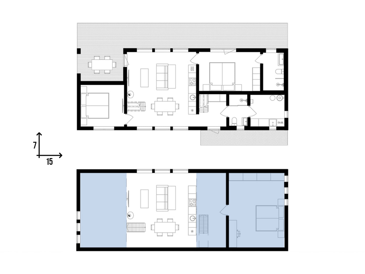
Powierzchnia 145 m²
Kuchnia, salon: 1
Sypialnie: 3
Łazienka: 2
Garaż:
Powierzchnia ciepła - 133 m²
Cena bazowa od 35 525 EUR
Do dekoracji od 50 750 EUR







Dlaczego warto budować domy z paneli SIP?
Efektywności energetycznej
Szybkość budowy
Budowa domów z paneli SIP firmy Eurhome odbywa się znacznie szybciej w porównaniu z tradycyjnymi metodami. Dzięki modułowej konstrukcji paneli proces montażu domu przypomina montaż konstruktora. Panele można łatwo transportować i montować, co skraca czas budowy do kilku tygodni zamiast miesięcy. Ponadto brak konieczności stosowania ciężkiego sprzętu i skomplikowanych prac przygotowawczych jeszcze bardziej przyspiesza proces.
Oszczędzać pieniądze
Budowa domów z paneli SIP firmy Eurhome pozwala znacznie zaoszczędzić pieniądze. Dzięki wysokiej izolacyjności termicznej paneli SIP, koszty ogrzewania i klimatyzacji są obniżone. Szybki proces budowy zmniejsza koszty pracy i sprzętu. Panele są wykonane z materiałów przyjaznych dla środowiska i niedrogich, co pomaga również zaoszczędzić pieniądze. Ponadto domy z panelami SIP wymagają w przyszłości mniej konserwacji, co dodatkowo obniża koszty.
Trwałość i niezawodność
Domy z paneli SIP firmy Eurhome charakteryzują się dużą trwałością i niezawodnością. Panele są odporne na wilgoć, szkodniki i grzyby, co zapewnia długą żywotność konstrukcji. Mocna konstrukcja paneli SIP wytrzymuje duże obciążenia i zapewnia wysoką odporność na uszkodzenia mechaniczne. Dzięki tym właściwościom domy z paneli SIP pozostają wygodne i bezpieczne do zamieszkania przez wiele lat.